Haben Sie Fragen zu unseren Produkten und Dienstleistungen?
Kontaktieren Sie uns gerne unverbindlich per E-Mail oder telefonisch.
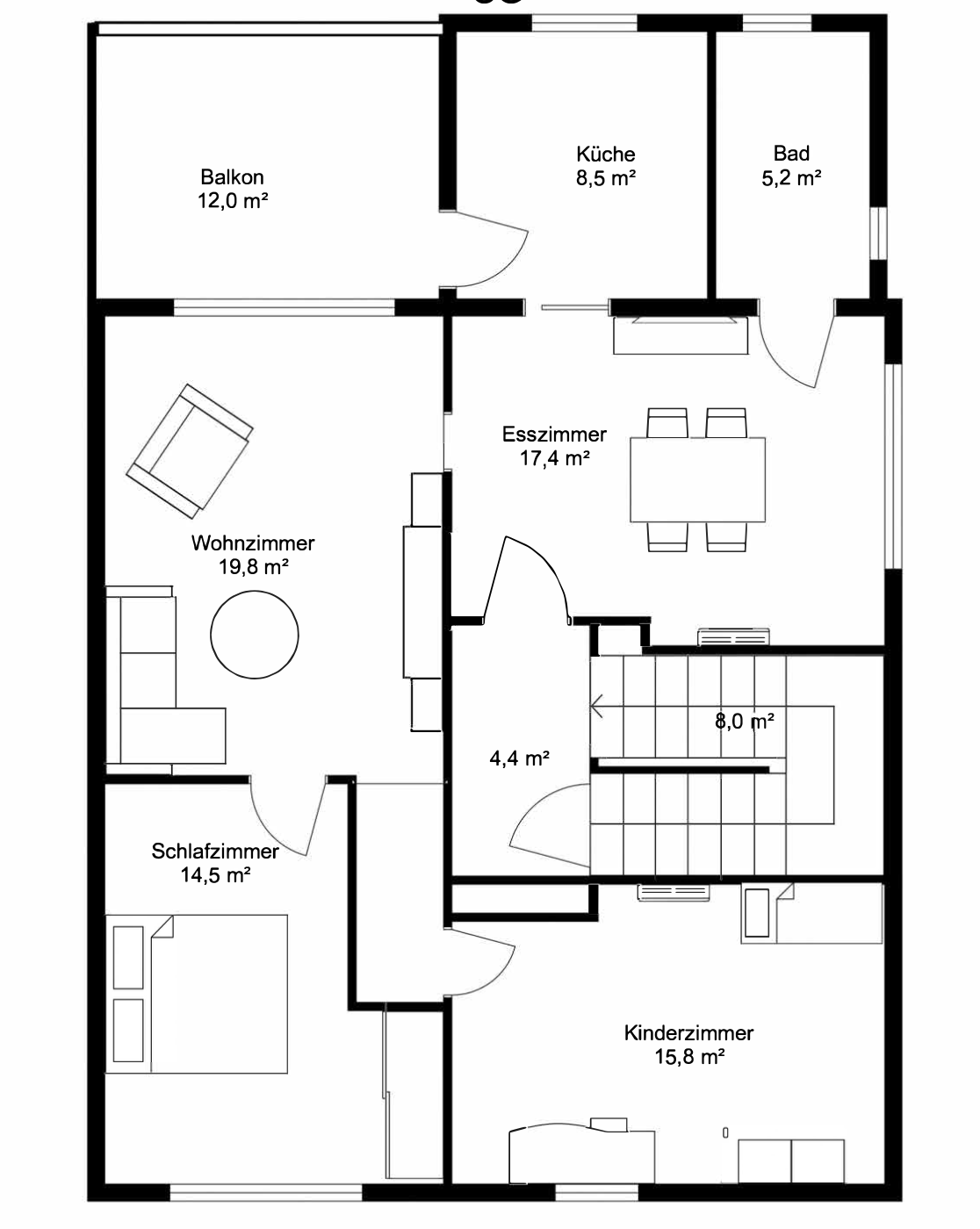
Mit unserem Produkt Grundrisserstellung erhalten Sie eine professionelle und maßstabsgetreue Erstellung oder Überarbeitung von Grundrissen für Ein- und Zweifamilienhäuser sowie Mehrfamilienhäuser bis zu 3 Wohneinheiten.
Wir erstellen auf Basis Ihrer vorhandenen Unterlagen, Skizzen, Maße, Fotos oder Baupläne einen klar strukturierten und optisch ansprechenden Grundriss, ideal für:
Immobilienverkauf & Exposé
Vermietung
Finanzierungsunterlagen
Bauanträge / Planung
Modernisierung & Umbau
Wohnflächenberechnung
Die Erstellung eignet sich perfekt für Eigentümer, Makler, Käufer und Investoren, die eine professionelle Darstellung der Immobilie benötigen.







